ALOHA Coffee,一个位于上海旧法租界陕西南路的特色咖啡店,坐落于一栋具有历史意义的居民建筑底层。ALOHA品牌闻名于其对咖啡文化的钻研和对传统制作方法的尊重。由知一设计研究室设计,该项目的核心是从周围老旧街道的红砖肌理中汲取灵感,讲述咖啡店与所在地区的历史和文化故事。

▲Aloha Cafe正立面 ©Vikin
在此项目中,红砖不仅仅作为一种结构材料,更是空间设计的核心。在过去几个世纪,随着钢结构和钢筋混凝土的流行,红砖逐渐转变为一种填充和装饰材料。然而,此次设计的重点在于恢复红砖的原始诚实感,使之成为空间内部的一个自治整体——自我支撑,形成独特的肌理,承载功能,营造内在的庇护感。

▲Aloha Cafe立面街区轴侧图 ©Atelier IN
空间与结构
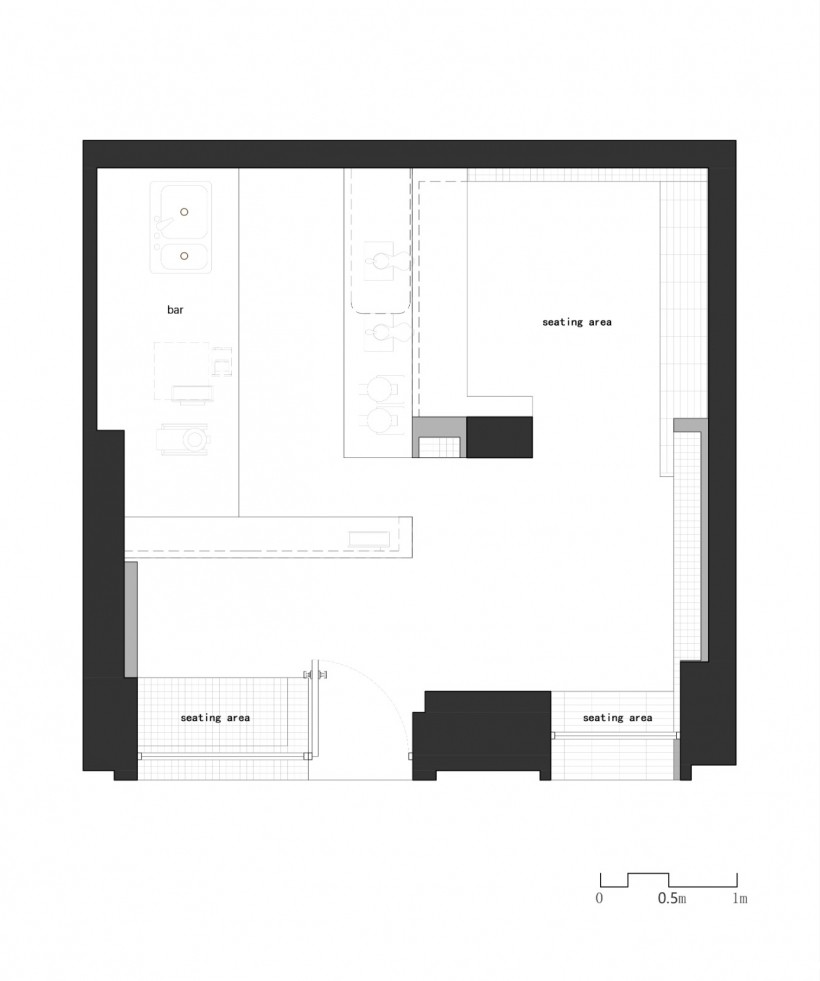
店铺的设计围绕一根老旧居民楼的承重柱展开,该柱子在室内空间的整体布局中起着决定性作用。原设计由于柱子的存在而导致操作台和客区分隔。改造过程中,设计师决定重新整合这一区域,释放出更为完整和清晰的客座空间。

▲Aloha Cafe空间调整 ©Atelier IN

▲Aloha Cafe平面图 ©Atelier IN

▲Aloha Cafe内部红砖 ©Oliver

▲Aloha Cafe外部红砖 ©Oliver
交互与体验
在新的空间布局中,红砖被巧妙地应用,创造了连续变化的场景。红砖的起伏、交错和转动,在视觉上形成了丰富的效果。这些设计细节允许顾客在不同场景中与空间互动,无论是依靠墙壁放置杯子,还是坐在红砖岛台前享受咖啡,或是靠窗感受早晨的阳光。

▲概念图解-物 ©Atelier IN

▲Aloha Cafe入口休息区 ©Oliver

▲Aloha Cafe内部红砖 ©Vikin

▲Aloha Cafe内部红砖 ©Oliver
社区连接
ALOHA Coffee不仅是一家咖啡店,更是社区的一部分。顾客们在此与店主交流,享受轻松的时光,体现了社区咖啡店的真正意义。这种设计不仅赋予了空间功能性,也营造了一种独特的社区归属感。
总体而言,ALOHA Coffee咖啡店的设计展示了对历史与现代的深入理解与尊重,通过细腻的空间布局和材料运用,创造了一个既充满故事性又充满生活气息的场所。

▲Aloha Cafe 内部看向窗口 ©Oliver

▲Aloha Cafe正立面 ©Oliver
项目名称:Aloha 咖啡
项目地址:上海市徐汇区陕西南路510号
建筑事务所:知一设计研究室
项目客户:Aloha 咖啡
项目竣工:2023年12月
建筑面积:20㎡
主创建筑师团队:毕舟希/雁森/李金龙/徐大伟
施工团队:上海涛明装饰设计有限公司
项目摄影:Oliver,Vikin
联络邮箱:atelierin.studio@gmail.com






